Riferimento: Unico del 20/11/2025 10.00 Prezzo base intero lotto: € 41.715,00
Documentazione:
Avviso di gara Bando di gara Perizia
Sito ufficiale dell'Ente



 

Codice bene: E2075
Tipologia: Fabbricato rurale
Indirizzo: località Is Orrus
Comune: San Giovanni Suergiu (SU)
Descrizione:

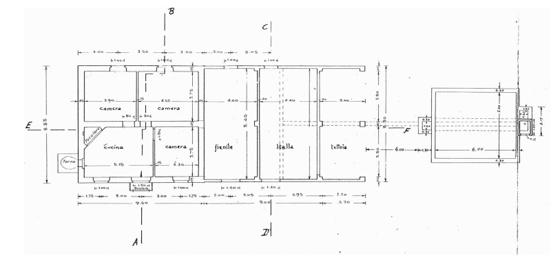
Fabbricato rurale con terreno in vendita – San Giovanni Suergiu (loc. Is Orrus)

Si vende fabbricato rurale edificato ante 1942, su un piano, di circa 97 mq ad uso abitativo e 95 mq di pertinenze agricole, con annesso terreno pianeggiante di 2.872 mq in unico appezzamento catastale.

L’immobile è privo di titolo abitativo ed è venduto nello stato di fatto e di diritto attuale, libero da ipoteche e pignoramenti, senza obbligo da parte del venditore di eseguire opere di completamento, miglioria o sgombero.

Per una completa descrizione ed individuazione dell’immobile posto in vendita e per ogni ulteriore dettaglio si rinvia alla perizia redatta dai tecnici consortili ed alla documentazione completa consultabile nel sito del Consorzio.

Sopralluoghi e visite:

Il sopralluogo è facoltativo.

Per poter effettuare un sopralluogo accompagnato da un tecnico consortile e prendere visione del bene oggetto dell’asta è necessario richiedere un appuntamento inoltrando un’istanza con una e-mail ad uno dei seguenti indirizzi di posta elettronica cbsm@cbsm.it oppure cbsm@pec.cbsm.it.

Maggiori dettagli sulle modalità di invio nel bando di gara.



Tipo di vendita: Offerta segreta
Sede: sede legale del Consorzio di Bonifica della Sardegna Meridionale (c.f. 80000710923), in Cagliari, Via Dante, 254 , piano 1
Data e ora: 20/11/2025 10.00
Deposito cauzionale: € 2.085,75
Scadenza domande: 13/11/2025 12.00


Ente promotore: Consorzio di Bonifica della Sardegna Meridionale
Telefono: 07040951
Email: cbsm@cbsm.it



 

 

Mappa non disponibile